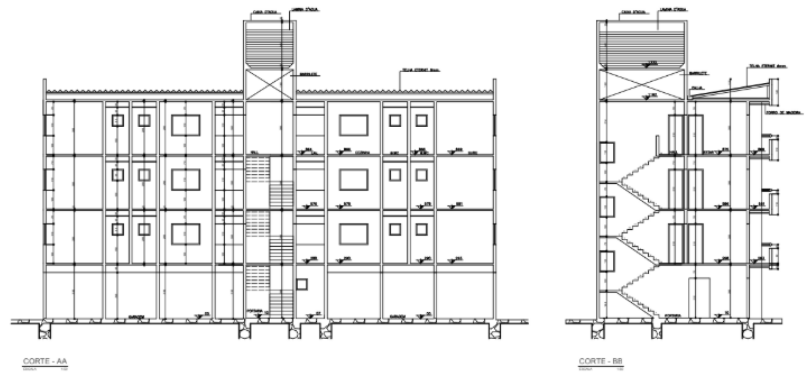
Projeto Arquitetônico

O Projeto Arquitetônico é o planejamento detalhado da obra, que servirá de base para os demais projetos da construção. Definido pelo arquiteto, ele estabelece os materiais, medidas e espaços necessários para a edificação.

É a materialização de uma necessidade do cliente, criando espaços com funcionalidade, conforto e segurança.

Projeto Arquitetônico

O Projeto Arquitetônico é o planejamento detalhado da obra, que servirá de base para os demais projetos da construção. Definido pelo arquiteto, ele estabelece os materiais, medidas e espaços necessários para a edificação.

É a materialização de uma necessidade do cliente, criando espaços com funcionalidade, conforto e segurança.

Benefícios

  • Segurança: Identifica riscos estruturais e evita acidentes.
  • Economia: Previne gastos com manutenções emergenciais.
  • Base jurídica: Serve como prova técnica em processos e negociações.
  • Valorização do imóvel: Agrega confiança e credibilidade ao patrimônio.
  • Planejamento assertivo: Orienta reformas e manutenções com precisão.
  • Conformidade legal: Garante que o imóvel siga normas e exigências técnicas.

Fluxo do Processo de Vendas

Nosso processo de vendas é estruturado para oferecer agilidade, clareza e eficiência, desde o primeiro contato com o cliente até o início da execução do projeto. Abaixo, detalhamos as etapas principais:

1. Captação e Atendimento Inicial

O Departamento de Vendas realiza o primeiro contato com o cliente.

Um assessor de vendas coleta informações básicas para iniciar o diagnóstico.

Se necessário, é agendada uma reunião (presencial ou online) para coleta de dados mais aprofundada.

Com base nessas informações, é elaborado um briefing personalizado.

2. Análise de Viabilidade

O briefing é encaminhado ao Departamento de Projetos.

A equipe analisa tecnicamente a viabilidade do atendimento conforme as necessidades e expectativas do cliente.

Caso o projeto seja viável, o processo segue para a próxima etapa.

3. Elaboração e Envio da Proposta

O assessor de vendas monta a proposta orçamentária com base na análise de viabilidade.

A proposta é enviada ao cliente por e-mail ou WhatsApp.

Com a aprovação do orçamento, o cliente confirma o interesse formalmente.

1. Captação e Atendimento Inicial

O Departamento de Vendas realiza o primeiro contato com o cliente.

Um assessor de vendas coleta informações básicas para iniciar o diagnóstico.

Se necessário, é agendada uma reunião (presencial ou online) para coleta de dados mais aprofundada.

Com base nessas informações, é elaborado um briefing personalizado.

2. Análise de Viabilidade

O briefing é encaminhado ao Departamento de Projetos.

A equipe analisa tecnicamente a viabilidade do atendimento conforme as necessidades e expectativas do cliente.

Caso o projeto seja viável, o processo segue para a próxima etapa.

3. Elaboração e Envio da Proposta

O assessor de vendas monta a proposta orçamentária com base na análise de viabilidade.

A proposta é enviada ao cliente por e-mail ou WhatsApp.

Com a aprovação do orçamento, o cliente confirma o interesse formalmente.

4. Preparação e Assinatura do Contrato

O assessor coleta as informações necessárias para a confecção do contrato.  O Departamento Administrativo-Financeiro é responsável por elaborar o contrato.

O cliente é convidado para uma reunião de assinatura presencial ou, se preferir, a assinatura é feita digitalmente.

5. Início do Projeto

Após a assinatura, é formada a equipe responsável pela execução.

O projeto é iniciado conforme o escopo e cronograma definidos.

4. Preparação e Assinatura do Contrato

O assessor coleta as informações necessárias para a confecção do contrato.  O Departamento Administrativo-Financeiro é responsável por elaborar o contrato.

O cliente é convidado para uma reunião de assinatura presencial ou, se preferir, a assinatura é feita digitalmente.

5. Início do Projeto

Após a assinatura, é formada a equipe responsável pela execução.

O projeto é iniciado conforme o escopo e cronograma definidos.

Se interessou?